Ficha
Piso en venta en Madrid (Barrio de Salamanca)
REF. 1325

32 m2

1

1

6
venta: 1.079.000 €
Descripción

San Álvaro Consultoría Inmobiliaria presenta este inmueble en venta en Madrid, Barrio de Salamanca. Ubicación destacada, entorno consolidado y con gran oferta de servicios. Calle tranquila, rodeada de comercios premium, restauración de calidad y red de transporte eficiente.

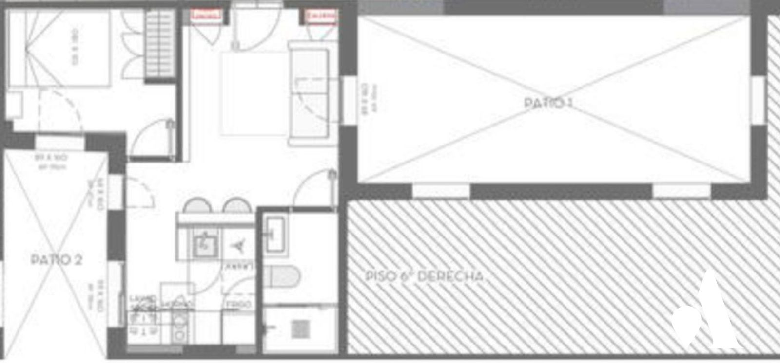
Con una superficie construida: 32,00 m2, la propiedad se compone de 1 habitación, 1 baño y una terraza. Además, dispone de calefacción central y aire acondicionado. La vivienda se comercializa completamente reformada y amueblada. 

San Álvaro Consultoría Inmobiliaria, invita a los interesados a coordinar una visita para conocer todas las ventajas de esta propiedad. 


Características
Precio Venta 1.079.000 €
Construidos 32 m2
Precio/m² 33.719
Dormitorios 1
Baños 1
Amueblado
Cocina Amueblada
Calefacción Central
Terraza
Altura/Planta 6
Estado Reformado
Ascensor
Aire acondicionado
Calificación Energética En trámite
Conserje
Escalas de eficiencia



Tu agente
San Álvaro
Contáctanos

Si deseas más información sobre esta propiedad, por favor, rellena el formulario.

 Sí, he leído y/o acepto las Condiciones de uso y la Política de privacidad
Galería
Inmuebles similares:
 
950.000 €
Ref. 1339  116 m2  2  2
Piso en venta en Madrid, con 116 m2, 2 habitaciones y 2 baños, Trastero, Ascensor, Aire acondicionado y Calefacción Individual.
 
1.230.000 €
Ref. 1335  159 m2  3  3
Piso en venta en Madrid, con 159 m2, 3 habitaciones y 3 baños, Trastero, Ascensor, Amueblado, Aire acondicionado y Calefacción Individual.