Ficha
Piso en venta en Madrid (Castellana)
REF. 1357

103 m2

2

2

3
venta: 1.750.000 €
Descripción

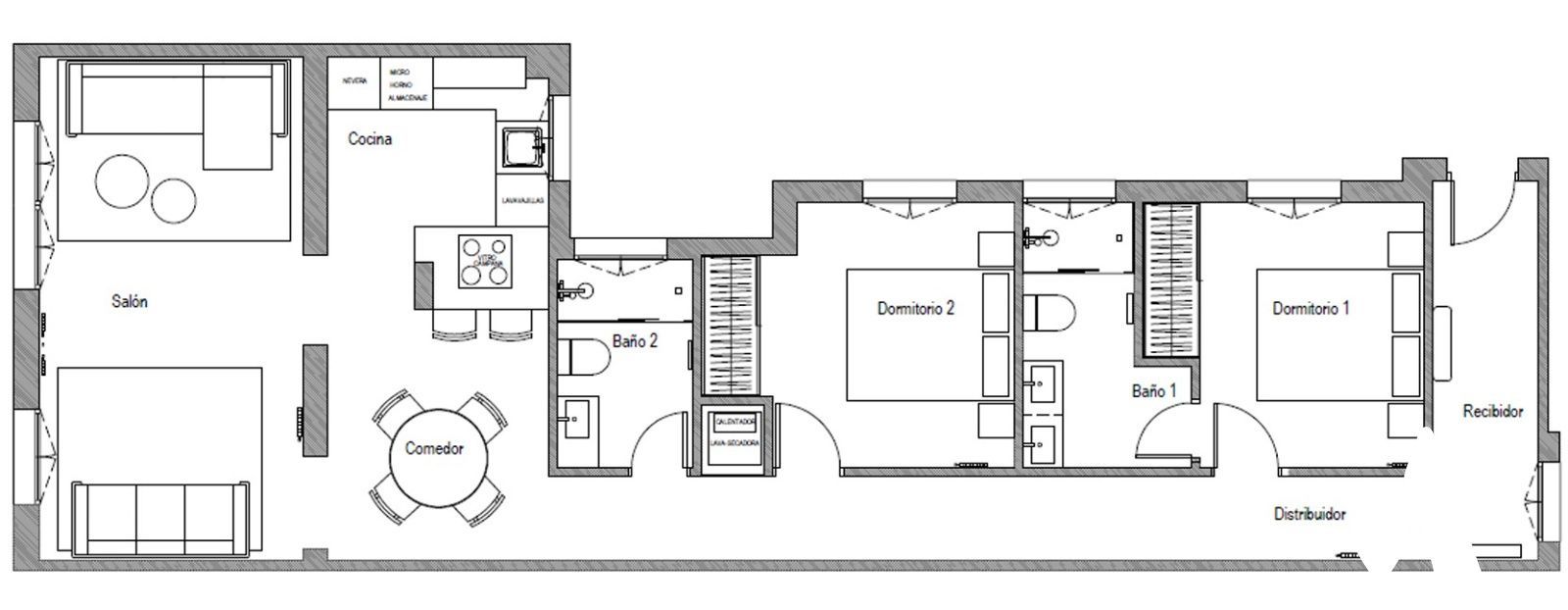
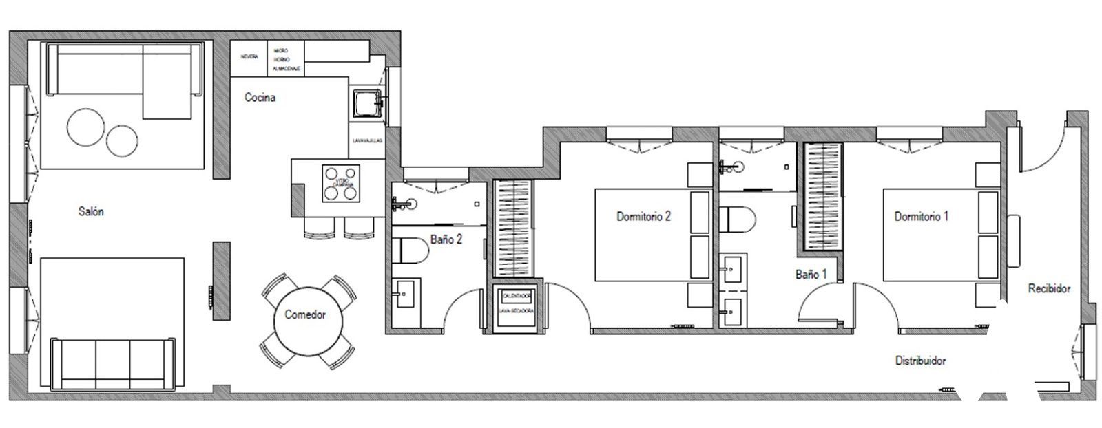
Presentamos este inmueble en venta ubicado en Madrid, en la codiciada zona de Castellana, con una distribución eficiente que maximiza cada metro. Cuenta con 103,00 m2 construidos que albergan dos habitaciones y dos baños, proporcionando un equilibrio entre espacios de descanso y áreas de uso diario.

El inmueble se presenta amueblado y equipado con armarios empotrados, lo que facilita la organización y la optimización de la entrada desde el primer día. La calefacción central garantiza confort térmico continuo y un mantenimiento de gastos controlado, complementado por un trastero para almacenamiento adicional.

La propiedad se sitúa en una zona de gran conectividad y oferta de servicios, con presencia de comercios, restauración y parques cercanos que incrementan la comodidad de la vida diaria. Su entorno inmediato se caracteriza por avenidas amplias y un flujo urbano constante, facilitando el acceso a transportes públicos y a las principales arterias de la ciudad.

Ofrecido por San Álvaro Consultoría Inmobiliaria, este inmueble presenta una oportunidad clara para quien valora una ubicación privilegiada.

Características
Precio Venta 1.750.000 €
Precio/m² 16.990
Gastos de comunidad 205 €
I.B.I. 643 €
Año de construcción 1934
Construidos 103 m2
Dormitorios 2
Baños 2
Amueblado
Calefacción Central
Trastero
Altura/Planta 3
Estado Reformado
Calificación Energética En trámite
Conserje
Escalas de eficiencia



Tu agente
San Álvaro
Contáctanos

Si deseas más información sobre esta propiedad, por favor, rellena el formulario.

 Sí, he leído y/o acepto las Condiciones de uso y la Política de privacidad
Galería
Inmuebles similares:
 
1.875.000 €
Ref. 1468  155 m2  2  3
Piso en venta en Madrid, con 155 m2, 2 habitaciones y 3 baños, Ascensor, Amueblado, Aire acondicionado y Calefacción Central.
 
1.530.000 €
Ref. 1467  156 m2  3  4
Piso en venta en Madrid, con 156 m2, 3 habitaciones y 4 baños, Ascensor, Amueblado, Aire acondicionado y Calefacción Central.