Ficha
Piso en venta en Madrid (Malasaña-Universidad)
REF. 1430

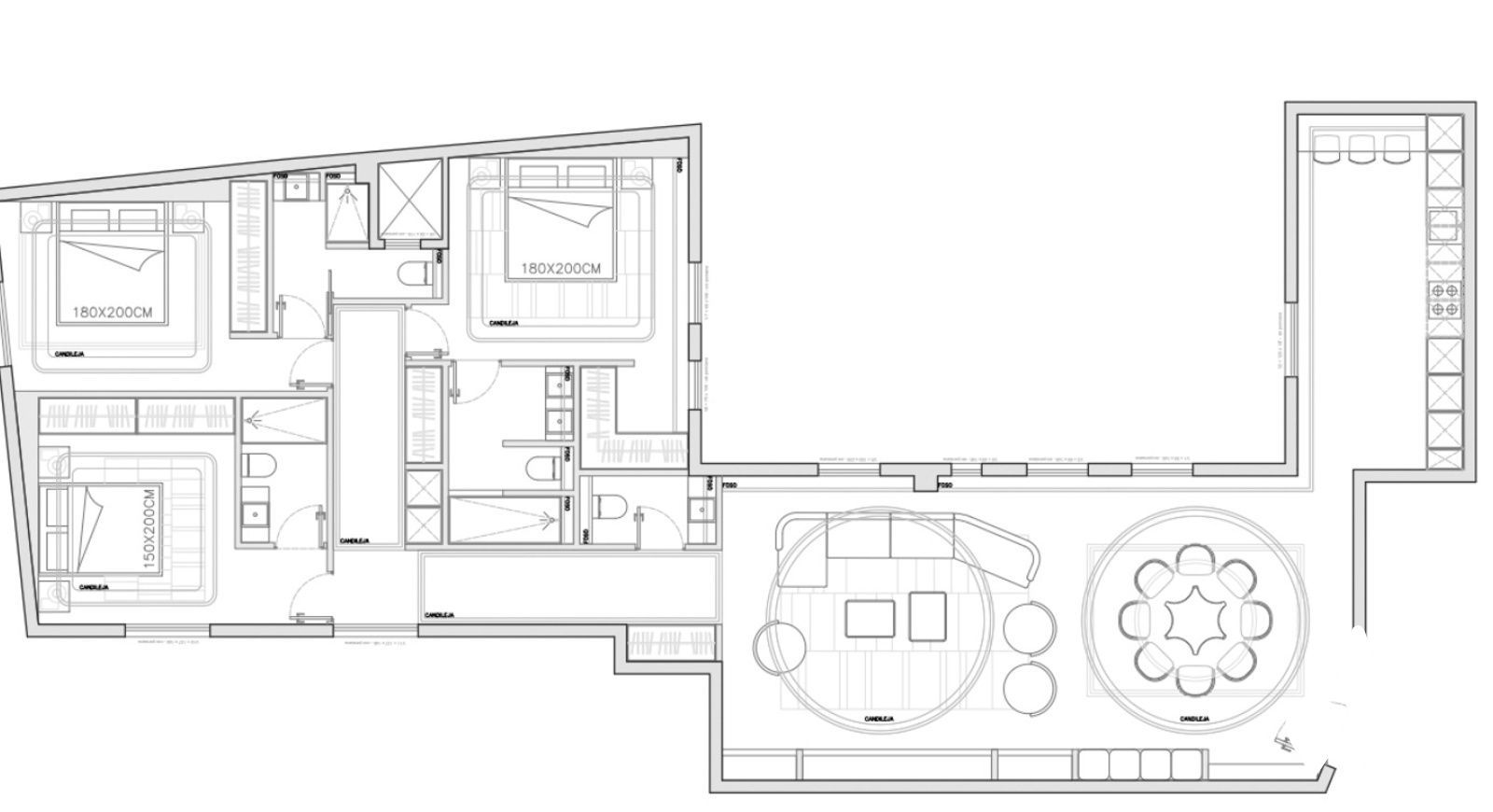
176 m2

3

4

2
venta: 1.675.000 €
Descripción

Inmueble en venta situado en Madrid, en la zona de Malasaña-Universidad, ofrece una planta amplísima de 176,00 m2 construidos distribuidos en tres habitaciones y cuatro baños, con la comodidad de un conserje que garantiza seguridad y atención continua. Este inmueble destaca por su distribución funcional, pensada para diferentes usos comerciales o de empresa, con espacios versátiles que facilitan adaptaciones según necesidades específicas. La iluminación natural y las superficies limpias permiten crear entornos de trabajo o de atención al cliente con un carácter contemporáneo y profesional.

La zona de Malasaña-Universidad aporta un entorno dinámico y estratégico: calles vivas, oferta de ocio, restauración variada y una conectividad excelente con el resto de la ciudad. Aquí convive la estética urbana con servicios de cercanía, como supermercados, bancos y centros educativos, lo que facilita la operatividad diaria de cualquier actividad profesional. La proximidad a nodos de transporte público y grandes arterias de Madrid garantiza acceso rápido para clientes y equipos, aumentando la visibilidad y la facilidad de visitas. Este entorno favorece la presencia de negocios con identidad y buena imagen ante potenciales clientes.

Oferta por San Álvaro Consultoría Inmobiliaria, con la propuesta de valor centrada en la optimización de espacios para resultados. Se recomienda visitar para valorar en persona la dimensionalidad de las estancias y la capacidad de adaptación a diversas configuraciones.

Características
Precio Venta 1.675.000 €
Precio/m² 9.517
Gastos de comunidad 185 €
I.B.I. 1.261 €
Año de construcción 1948
Construidos 176 m2
Dormitorios 3
Baños 4
Altura/Planta 2
Estado Reformado
Calificación Energética En trámite
Conserje
Escalas de eficiencia



Tu agente
San Álvaro
Contáctanos

Si deseas más información sobre esta propiedad, por favor, rellena el formulario.

 Sí, he leído y/o acepto las Condiciones de uso y la Política de privacidad
Inmuebles similares:
 
1.875.000 €
Ref. 1468  155 m2  2  3
Piso en venta en Madrid, con 155 m2, 2 habitaciones y 3 baños, Ascensor, Amueblado, Aire acondicionado y Calefacción Central.
 
1.530.000 €
Ref. 1467  156 m2  3  4
Piso en venta en Madrid, con 156 m2, 3 habitaciones y 4 baños, Ascensor, Amueblado, Aire acondicionado y Calefacción Central.