Ficha
Piso en venta en Madrid (Barrio de Salamanca)
REF. 1480

451 m2

43 m2

4

5

1
venta: 7.850.000 €
Descripción

El inmueble ofrece una oportunidad excepcional en el corazón del Barrio de Salamanca, con espectaculares vistas a la Embajada de Italia que enriquecen cada estancia. Destaca su reforma a estrenar y su amueblado de alto standing, preparado para entrar a vivir sin necesidad de inversiones adicionales. Se presenta como una vivienda amplia y funcional, creada para disfrutar de espacios bien definidos y de un acabado que combina la elegancia clásica con toques contemporáneos.

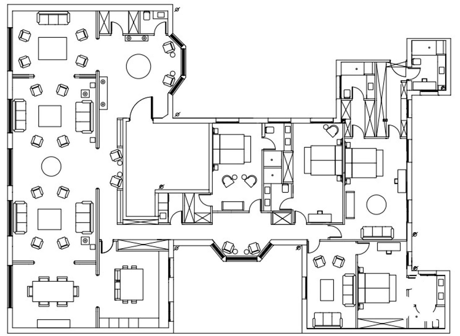
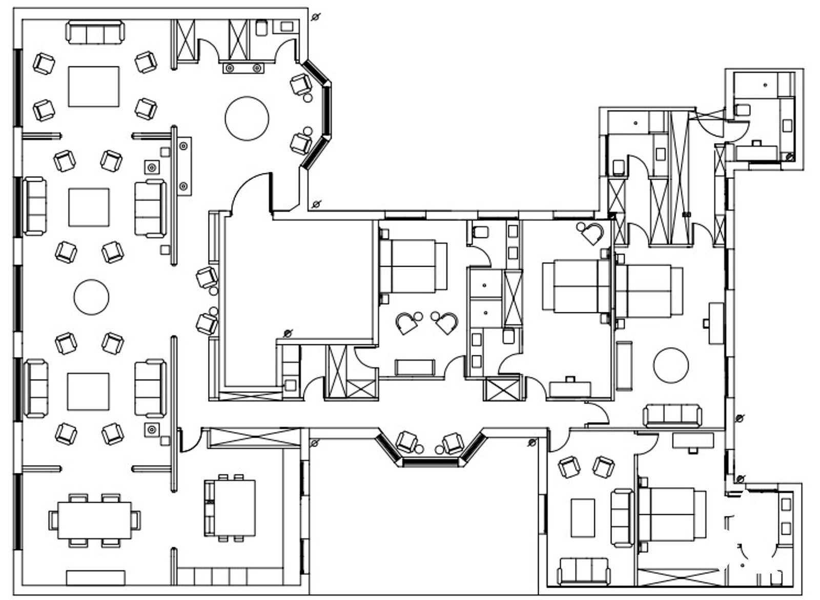
Con 451 m2 construidos y una terraza ajardinada de 43 m2, este inmueble se configura como un techo de uso mixto para vivir y recibir. La distribución contempla tres zonas de salones, un comedor y una cocina semi-integrada, pensadas para el confort diario y la recepción de invitados. En la zona nocturna, se disponen cuatro dormitorios en suite, el principal con dos vestidores y dos baños completos, garantizando privacidad y lujo para todos los miembros de la familia. Adicionalmente, existe un family room con acceso directo a la terraza, una opción que facilita la implantación de un quinto dormitorio si se necesitara. Completan la vivienda una lavandería y un aseo de cortesía, optimizando la funcionalidad en el día a día.

Su ubicación ofrece ventajas comerciales relevantes: proximidad a servicios premium, redes de transporte y un entorno consolidado que favorece la rotación de clientes potenciales. La terraza ajardinada aporta un espacio exterior privado para reuniones o descansos, aumentando la versatilidad del inmueble para usos mixtos de negocio y vivienda. 

Ofrecido por San Álvaro Consultoría Inmobiliaria, este inmueble se presenta como una opción clara para quienes buscan una vivienda llave en mano con especial incidencia en calidad, estilo y resultado comercial. En definitiva, una opción destacada para quienes exigen amplitud, lujo contenido y una puesta en escena que favorece la rentabilidad y la satisfacción a largo plazo.

Características
Precio Venta 7.850.000 €
Precio/m² 17.406
Gastos de comunidad 940 €
I.B.I. 3.390 €
Construidos 451 m2
Dormitorios 4
Baños 5
Amueblado
Cocina Amueblada
Terraza
Altura/Planta 1
Estado Reformado
Ascensor
Calificación Energética En trámite
Escalas de eficiencia



Tu agente
San Álvaro
Contáctanos

Si deseas más información sobre esta propiedad, por favor, rellena el formulario.

 Sí, he leído y/o acepto las Condiciones de uso y la Política de privacidad
Inmuebles similares:
 
8.400.000 €
Ref. 1479  471 m2  5  6
Piso en venta en Madrid, con 471 m2, 5 habitaciones y 6 baños, Trastero, Ascensor y Amueblado.
 
6.900.000 €
Ref. 1475  370 m2  5  6
Piso en venta en Madrid, con 370 m2, 5 habitaciones y 6 baños y Amueblado.